Description
STAINLESS STEEL TOILET PARTITIONS
The premium choice for commercial restrooms demanding exceptional durability, hygiene, and modern aesthetic appeal.
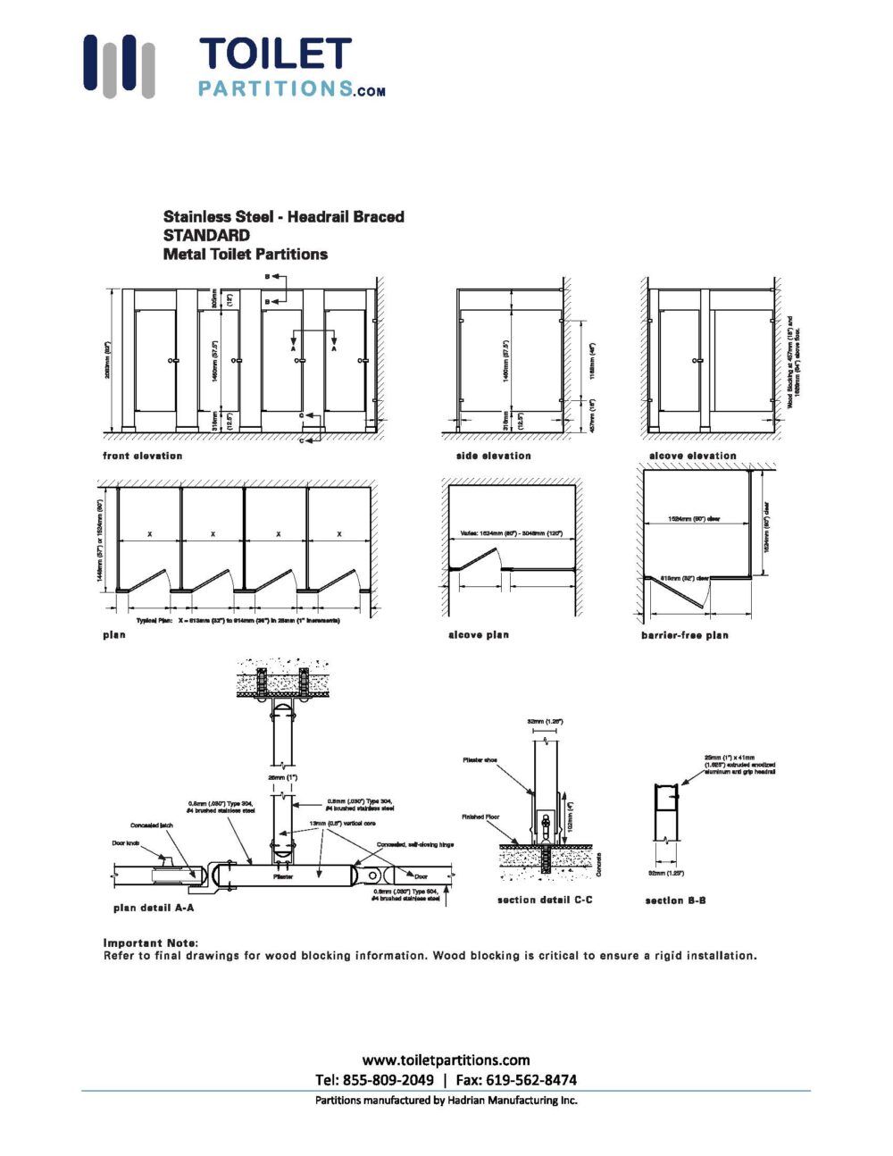
Premium 304-Grade Stainless Steel
Corrosion resistant • Easy to clean • 20+ year lifespan
Executive Summary
Stainless steel toilet partitions are the premium choice for commercial restrooms, recognized for their superior durability, hygiene, and modern aesthetic. While the initial investment is higher than alternative materials, their exceptional longevity and low maintenance requirements deliver long-term cost-effectiveness, especially in high-traffic environments.
These partitions are highly resistant to impact, scratches, corrosion, and vandalism, making them a robust and reliable solution for demanding commercial applications. The non-porous surface prevents absorption of moisture, odors, and bacteria, ensuring optimal hygiene standards.
Year Lifespan
Recyclable
Fire Rating
Steel Grade
Key Advantages
Robust construction resists impacts and scratches, with a lifespan often exceeding 20 years in commercial environments.
Chromium content ensures excellent resistance to rust, even in humid restroom environments with constant moisture exposure.
Non-porous surface prevents absorption of moisture, odors, and bacteria, allowing for easy cleaning and disinfection protocols.
Offers a sleek, modern, and high-end appearance that enhances the overall restroom design and user experience.
Meets Class A fire rating standards, enhancing safety compliance in commercial buildings and public facilities.
Significantly more resistant to damage than many other materials; textured finishes further deter and hide marks from vandalism.
Key Factors for Comparison and Decision Making
When selecting stainless steel toilet partitions, consider these critical factors to ensure optimal performance and value:
| Factor | Specification | Impact on Performance | 
|---|---|---|
| Stainless Steel Grade | 304-Grade (18% Chromium, 8% Nickel) | Superior corrosion resistance and durability | 
| Thickness | 16-20 gauge (.050″-.036″) | Determines structural integrity and dent resistance | 
| Surface Finish | #4 Satin, #8 Mirror, Textured | Affects appearance, maintenance, and scratch visibility | 
| Core Material | Honeycomb, Solid Steel, Foam | Impacts weight, strength, and thermal properties | 
| Hardware Quality | 316 Stainless Steel Fittings | Ensures long-term functionality and corrosion resistance | 
Ideal Applications
Stainless steel toilet partitions are best suited for high-end, high-traffic commercial environments where durability, hygiene, aesthetic appeal, and resistance to wear are paramount:
Corporate Offices
Executive restrooms requiring premium appearance
Airports & Transportation
High-traffic areas demanding durability
Healthcare Facilities
Strict hygiene requirements and easy sanitization
Educational Institutions
Vandal resistance and long-term durability
Restaurants & Hotels
Premium aesthetic and easy maintenance
Retail Stores
Modern appearance and customer experience
Maintenance and Care
Proper maintenance is crucial to preserve the appearance and longevity of stainless steel toilet partitions:
Daily Routine Cleaning
Daily wiping with warm water and a clean, damp cloth, always rubbing in the direction of the grain to maintain the finish appearance.
Mild Detergent Application
Use mild dishwashing liquid or diluted ammonia solution for tougher stains, followed by thorough rinsing and complete drying.
Fingerprint and Smudge Removal
Use commercial stainless steel cleaners or glass cleaners specifically designed for stainless steel surfaces.
Stubborn Stain Treatment
Apply commercial stainless steel cleaners for persistent spots and residue, following manufacturer instructions carefully.
Professional Installation Recommendation: Ensure proper fastening and isolation of dissimilar metals to prevent galvanic corrosion, which can compromise the partition’s integrity and appearance over time.
Cost and Value Analysis
Total Cost of Ownership Advantage: While stainless steel partitions have a higher initial investment compared to laminate or painted steel alternatives, their exceptional 20+ year lifespan and minimal maintenance requirements result in superior long-term value.
| Material Type | Initial Cost | Expected Lifespan | Maintenance Level | Long-term Value | 
|---|---|---|---|---|
| Stainless Steel | High | 20+ years | Low | Excellent | 
| Solid Plastic | Medium-High | 15-20 years | Low | Good | 
| Powder Coated Steel | Medium | 10-15 years | Medium | Fair | 
| Plastic Laminate | Low | 7-12 years | High | Poor | 
 
                             
                             
                             
                             
                            
 
							 
							


